POINTS OF THIS PROPERTYポイント
大容量の太陽光発電システム・蓄電池搭載のスマートハウス!
~もしもの災害時にも安心で、でできるだけ電気を買わない先進の暮らし~
特長
-
No.33/ダイニング脇のユーティリティは、趣味や仕事に集中できる空間です。
-
No.41/リビング脇のユーティリティはお子様の遊び場やお昼寝場所にも便利。
-
No.51/毎日の家事が楽になる回遊型の間取りです。
- 太陽光発電システム
- 蓄電池
- スマートハイムナビ(HEMS)
- 玄関スマートキー
(電子錠) - エコキュート
- 食器洗い乾燥機
SURROUNDING ENVIRONMENT / MAP周辺環境・MAP
-
南十字保育園
徒歩9分~10分/約660m~790m
-
いろは公園
徒歩2~4分/約130m~260m
-
タイヨービッグハウス
徒歩26分~27分/約2010m~2140m
-
つくばエクスプレス「万博記念公園」駅
徒歩23分~25分/約1770m~1960m
-
つくばエクスプレス「みどりの」駅
徒歩29~31分/約2300m~2420m
保育・教育施設
南十字保育園
徒歩9分~10分/約660m~790m谷田部小学校
徒歩23分~25分/約1780m~1950m谷田部中学校
徒歩26分~28分/約2060m~2190m
公園
いろは公園
徒歩2~4分/約130m~260m
ショッピング
タイヨービッグハウス
徒歩26分~27分/約2010m~2140mセブンイレブン
徒歩5分~7分/約340m~520m
その他
つくばエクスプレス「万博記念公園」駅
徒歩23分~25分/約1770m~1960mつくばエクスプレス「みどりの」駅
徒歩29~31分/約2300m~2420m
※掲載の案内図は一部道路・施設等を抜粋して表記しています。
Google Mapを見る
EQUIPMENT / SPECIFICATIONS設備・仕様
-
太陽光発電システム
ソーラー発電で月々の光熱費が抑えられます。
※メーカーのモデルチェンジにより、形状が変更となる場合があります。
※事前に計画したコンセントでのみ電力使用が可能です。同時に使用できる電力には限りがあります。 -
蓄電池
停電時でも生活に最低限 必要な電力を確保。
※停電時には蓄電池の残量が無いと復旧しません。停電時に自動ですべてのコンセント・照明・設備に電気が供給されます。同時に使用できる電力には限りがあります。
※蓄電池容量はカタログ値であり、実際に使える容量とは異なります。
※写真は9.9kWh -
スマートハイムナビ(HEMS)
電力状況を見える化し、省エネをアドバイス。
-
玄関スマートキー(電子錠)
リモコンをカバンに入れたままドアを施解錠。
※写真は参考イメージです。
-
エコキュート
空気中の熱も利用してお湯を沸かすエコな給湯器
※画像は参考イメージ。メーカー、仕様により形状等が異なります。
-
食器洗い乾燥機
家事の時短、節水に効果あり、手荒れ対策にも。
※画像は参考イメージ
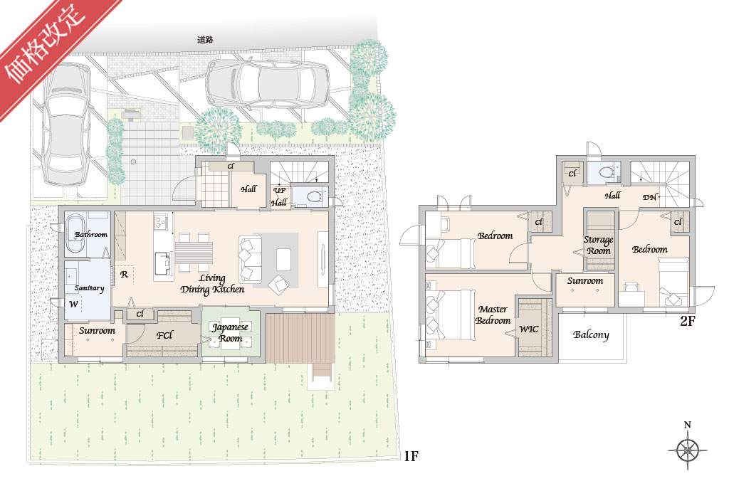
BLOCK DIAGRAM / FLOOR PLAN区画図・間取り
区画図
間取り
左右にフリックしてご覧ください鉄骨系ユニット工法
- 販売価格
- 4,980万円(税込)
- 土地面積
- 181.64m² ( 54.94坪 )
- 建物面積
- 105.11m² ( 31.79坪 )
- 主な設備
- 太陽光発電システム 4.77kW、蓄電池 12.0kWh
鉄骨系ユニット工法
- 販売価格
- 5,340万円(税込)
- 土地面積
- 181.82m² ( 55.00坪 )
- 建物面積
- 109.19m² ( 33.02坪 )
- 主な設備
- 太陽光発電システム 6.36kW、蓄電池 9.9kWh
鉄骨系ユニット工法
- 販売価格
- 5,280万円(税込)
- 土地面積
- 181.92m² ( 55.03坪 )
- 建物面積
- 100.33m² ( 30.34坪 )
- 主な設備
- 太陽光発電システム 6.36kW、蓄電池 9.9kWh
鉄骨系ユニット工法
- 販売価格
- 5,480万円(税込)
- 土地面積
- 189.13m² ( 57.21坪 )
- 建物面積
- 107.99m² ( 32.66坪 )
- 主な設備
- 太陽光発電システム 7.99kW、蓄電池 9.9kWh
鉄骨系ユニット工法
- 販売価格
- 5,880万円(税込)
- 土地面積
- 190.01m² ( 57.47坪 )
- 建物面積
- 120.30m² ( 36.39坪 )
- 主な設備
- 太陽光発電システム 9.99kW、蓄電池 12.0kWh
鉄骨系ユニット工法
- 販売価格
- 5,480万円(税込)
- 土地面積
- 193.90m² ( 58.65坪 )
- 建物面積
- 112.00m² ( 33.88坪 )
- 主な設備
- 太陽光発電システム 5.92kW、蓄電池 9.9kWh
鉄骨系ユニット工法
- 販売価格
- 5,680万円(税込)
- 土地面積
- 231.79m² ( 70.11坪 )
- 有効土地面積
- 193.66m² ( 58.58坪 )
- 建物面積
- 112.73m² ( 34.10坪 )
- 主な設備
- 太陽光発電システム 7.42kW、蓄電池 12.0kWh
※外構・植栽は実際と異なる場合があります。自動車、自転車は販売価格に含まれません。間取りに記載された家具類は一部を除き販売価格に含まれません。
PROPERTY DESCRIPTION物件概要
- 名称
- ブリージアつくば陣場
- 所在地
- 茨城県つくば市谷田部字陣場2395番、2386番、字山合2485番、2484番1の各一部(底地)島名・福田坪一体型特定地区E27街区2画地の一部(保留地)他
- 交通
- つくばエクスプレス「万博記念公園」駅まで徒歩23分~25分(約1,770m~1,960m)
- 地目
- 宅地
- 都市計画
- 市街化区域
- 用途地域
- 第一種低層住居専用地域、第一種住居地域
- 建ぺい率
- 40% ※景観協定により規定
- 容積率
- 80% ※景観協定により規定
- 道路幅員・舗装
- 分譲地内約6.0m開発道路(アスファルト舗装)
- 私道負担
- なし
- 設備
- 東京電力(他の小売電気事業者の選択も可能です)、公営水道、公共下水(汚水・雑排水・雨水)
- 総区画数
- 73区画(内茨城セキスイハイム 42区画)
- 販売戸数
- 7戸
- 販売価格
- 4,980万円税込(1戸)~5,880万円税込
- 土地面積
- 181.64m²(1区画)~231.79m²(有効土地面積193.66m²、1区画)
- 建物面積
- 100.33m²(1戸)~120.30m²(1戸)
- 建築確認番号
- 第2023CA-1839H号(No.41)他
- 構造・工法・階数
- 鉄骨系ユニット工法2階建て
- 完成年月
- 2024年6月~12月完成
- 引渡し可能年月
- 即引渡し可
- 諸経費
- ●管理組合があります。入会一時金2万円、入会時15年分18万円。16年目以降12,000円/年額
- その他特記事項
- ●本分譲地では、快適で良好な住環境を皆様に提供する為に地区計画・景観協定を設けております。 ●先着順分譲のため、お申込み済の場合がございます。あらかじめご了承ください。 ●各宅地の販売対象面積は分割手続き後の面積となるため、若干の誤差を生じる恐れがありますが、誤差が1㎡未満の場合は精算致しません。 ※未入居物件については、補助金等が受けられない場合があります。詳細は営業担当にお問い合わせ下さい。
- 取引態様
- 売主:茨城セキスハイム株式会社
- 更新日
- 2026年1月12日
- 次回更新日
- 2026年1月26日
- 取引条件の有効期限
- 2026年2月6日
DEPARTMENT IN CHARGE担当
つくば分譲グループ
- 電話番号
- 0120-036-816(フリーコール)
- 住所
- 茨城県つくば市研究学園3-19-4
- 営業時間
- 9:00~17:30
- 定休日
- 火曜・水曜 ※祝日等の関係で定休日が変更になる場合があります
この物件を見た人はこんな物件も見てます
-
新築一戸建てスマートハイムプレイスかみかわⅥ〈5戸〉
所在地茨城県つくば市上河原崎字東原7番56同番57、8番1の各一部(底地)、上河原崎・中西特定地区B14街区7画地(保留地)他
詳細を見る -
土地スマートハイムシティ絹の台〈6区画〉
所在地茨城県つくばみらい市絹の台五丁目12番1他
詳細を見る -
新築一戸建て【予告広告】スマートハイムプレイス並木二丁目〈一戸建て〉
所在地茨城県つくば市並木二丁目5番25の一部
詳細を見る -
土地スマートハイムプレイス中神立〈3区画〉
所在地茨城県土浦市中神立町31番1、31番2、31番5、31番6
詳細を見る -
新築一戸建てスマートハイムプレイスうずら野〈6戸〉
所在地茨城県稲敷郡阿見町うずら野四丁目23番14他
詳細を見る -
新築一戸建てスマートハイムプレイス牛久南Ⅱ〈1戸〉
所在地茨城県牛久市南4丁目2番16
詳細を見る
- HOME
- ブリージアつくば陣場〈7戸/未入居〉























































