スペパとは・・・?
「スペースパフォーマンス」の略で、限られた空間をいかに効率的に活用できるかという考え方を言います。これは、コスパ(コストパフォーマンス)やタイパ(タイムパフォーマンス)と同様に、現代のライフスタイルにおける注目ワードです。
住宅で考えた場合、階段の下などデッドスペースの活用や、1台で多機能な設備などが挙げられます。
【 “スペパ&タイパ” の良い分譲住宅をエリア別でご紹介!】
「茨城セキスイハイムこだわりのスタイル分譲住宅」は、インテリアやエクステリアはもちろん、間取りにも様々な工夫が凝らされています。
そこで今回の特集では、実際にご見学いただける”スペパ&タイパ”が良い分譲住宅(※)をエリア別でご紹介致します!
※工事の状況によってはご見学いただけない場合がございます。
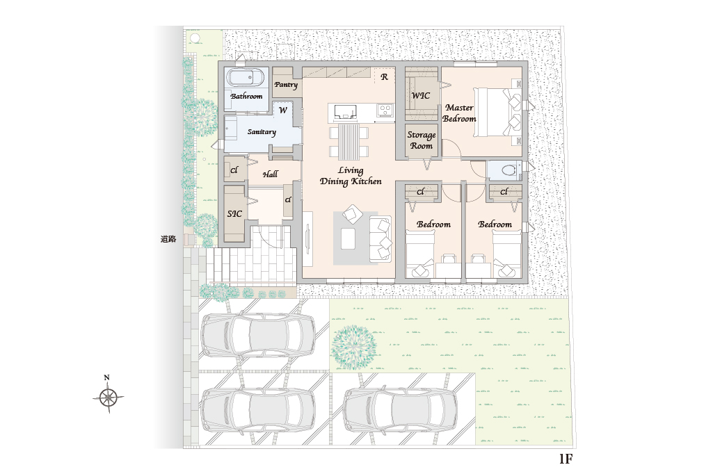
● 日立市 ●
家事動線が短いく集中している、無駄な移動のないプラン
ーーーーーーーーーーーーーーーーーー

| PICK UP POINT |
| 水回りが集約し、家事がラクラク。洗濯→干す→収納、といったように、家事動線が良いと同じ面積でも実際に使える”実効空間”が大きく感じられます。 |
| 広めの面積をただ部屋数でばらすのではなく、「家事室+ファミリークローク+リビングに接する和室」など、可変で使えるスペース配分がポイントです。 |
| 太陽光発電システム4.77kW、蓄電池13.2kWh、HEMS搭載。災害時や停電時も安心で、環境にも家計にも優しい未来志向のスマートハウスです。 |
● 那珂郡東海村 ●
大容量のファミリークロークで家じゅうスッキリ
ーーーーーーーーーーーーーーーーーー

| PICK UP POINT |
| 建物面積が115.10㎡と他の号棟よりも大きめなプランとなっています。家族構成の変化や家具配置の自由度が高く、部屋間の動線も窮屈になりにくいですね。敷地面積も十分に広いので、室内だけでなく、敷地全体を余裕ある暮らしに使えます。 |
| LDK・洗面・ウォークインクローゼット・外部動線が使いやすく、家事や日常動作のストレスが少なく設計されています。 |
| 太陽光発電システム8.51kW、蓄電池13.2kWh、HEMS搭載。災害時や停電時も安心で、環境にも家計にも優しい未来志向のスマートハウスです。 |
● 那珂市 ●
ゆとりある敷地で建物以外の使い勝手も◎
ーーーーーーーーーーーーーーーーーー

| PICK UP POINT |
| 建物だけでなく土地面積にも余裕があるため、駐車スペース・庭・将来の外構拡張など、建売住宅では得づらい「ゆとり」が確保されています。将来のライフステージ変化に柔軟に対応しやすく作られています。 |
| 個室と共有スペース、収納スペースがバランス良く取られていて、生活動線や収納効率が高めなプランです。 |
| 太陽光発電5.56kW、蓄電池13.2kWh、HEMS搭載。災害時や停電時も安心で、環境にも家計にも優しい未来志向のスマートハウスです。 |
● 水戸市 ●
生活しやすい平屋住宅+ロフト+スマート設備
ーーーーーーーーーーーーーーーーーー

| PICK UP POINT |
| 移動ストレスや将来のバリアフリーにも◎な平屋住宅。 |
| ロフトには季節物などをしまって部屋じゅうスッキリを叶えます。 |
| 太陽光発電システム6.66kW、蓄電池13.2kWh、HEMS搭載。災害時や停電時も安心で、環境にも家計にも優しい未来志向のスマートハウスです。 |
● 稲敷郡阿見町 ●
限られた面積の中で収納の配置や家事動線が考えられたプラン
ーーーーーーーーーーーーーーーーーー

| PICK UP POINT |
| 無駄な壁を減らし、家具の可変性を持たせた空間設計です。キッチンから洗面・ファミリークロークやユーティリティルームへの動線がスムーズで、毎日の家事もスムーズに行るよう考えられています。 |
| 各所に収納が設けられ、生活用品を分散収納できます。散らかりを防げる、部屋じゅうすっきりプランです。 |
| 太陽光発電システム5.56kW、蓄電池12.0kWh、HEMS搭載。災害時や停電時も安心で、環境にも家計にも優しい未来志向のスマートハウスです。 |
● 牛久市 ●
多機能スペース+収納計画で広さを感じさせる設計
ーーーーーーーーーーーーーーーーーー

| PICK UP POINT |
| 4LDK+書斎+ウォークインクローゼットと部屋数は多く、延床面積は113m²。コンパクトにまとまったプランです。 |
| LDKに隣接したデスクスペースや、2階の書斎、ホールのクローゼットなど、空間を上手く活用しています。 |
| 太陽光発電システム5.56kW、蓄電池13.2kWh、HEMS搭載。災害時や停電時も安心で、環境にも家計にも優しい未来志向のスマートハウスです。 |
● つくば市 ●
生活動線と収納力にこだわった効率の良い設計
ーーーーーーーーーーーーーーーーーー

| PICK UP POINT |
| リビング隣接の家事スペース、玄関直結のファミリークローゼットがあり、家事効率&整理整頓がしやすいプランです。 |
| 子ども部屋や書斎スペースなど多様に使える4居室に加え、ウォークインクローゼットで収納力も抜群。 |
| 太陽光発電システム9.99kW、蓄電池12.0kWh、HEMS搭載。災害時や停電時も安心で、環境にも家計にも優しい未来志向のスマートハウスです。 |
● つくばみらい市 ●
広さだけでなく、生活全体の余裕を含めたスペパ物件
ーーーーーーーーーーーーーーーーーー

| PICK UP POINT |
| 建物面積と土地面積のバランスが良く、余裕ある空間設計。敷地の無駄が少なく、駐車スペースや外構、庭スペースなど、生活の “余白”を確保しやすいプランです。 |
| 自転車やバイク置き場、外部収納、植栽やガーデニングといった”ゆとりある暮らし”がしやすく、建物を囲む外部スペースも活かしやすい設計が魅力です。 |
| 太陽光発電システム6.36kW、蓄電池13.2kWh、HEMS搭載。災害時や停電時も安心で、環境にも家計にも優しい未来志向のスマートハウスです。 |
● 筑西市 ●
ウォークスルーパントリーが魅力のラク家事プラン
ーーーーーーーーーーーーーーーーーー

| PICK UP POINT |
| 食材や備品をストックするパントリーはウォークスルー仕様。物の出し入れがスムーズで便利です。 |
| キッチン近くのカウンターは、リビングやダイニングとつながりを保ちつつ、勉強や家事補助など作業スペースとして使えて便利です。 |
| 太陽光発電システム6.36kW、蓄電池4.9kWh、HEMS搭載。災害時や停電時も安心で、環境にも家計にも優しい未来志向のスマートハウスです。 |
● 古河市 ●
将来を見据えた余白スペースの活用可能性がある平屋プラン
ーーーーーーーーーーーーーーーーーー

スマートハイムプレイス古河市上辺見Ⅱ No.3/3LDK+WIC
※外構・植栽は実際と異なる場合があります。
| PICK UP POINT |
| 平屋で動線が縮まるため、部屋→水回り→収納などがスムーズです。年齢が上がっても使いやすさが維持されやすく、「実用的な広さ」が活きやすいプランとなっています。 |
| 階段スペースがないため、居住空間や収納、庭などに余裕をつくりやすいのも大きなメリットです。 |
| 太陽光発電システム6.66kW、蓄電池13.2kWh、HEMS搭載。災害時や停電時も安心で、環境にも家計にも優しい未来志向のスマートハウスです。 |
● 鹿嶋市 ●
5LDKの間取りで柔軟性が高く、将来の家族構成変化にも対応しやすいプラン
ーーーーーーーーーーーーーーーーーー

スマートハイムプレイス宮中 No.2/5LDK+WIC
※外構・植栽は実際と異なる場合があります。
| PICK UP POINT |
| 子どもが増える、在宅ワーク、親との同居、趣味部屋など、用途の変化に応じて部屋を有効活用しやすい5LDKプランです。 |
| 玄関のシューズインクローク、居室、収納スペースのバランスで、ただ広いだけでなく「使いやすい広さ」を確保しています。 |
| 太陽光発電システム5.56kW、蓄電池13.2kWh、HEMS搭載。災害時や停電時も安心で、環境にも家計にも優しい未来志向のスマートハウスです。 |
● 神栖市 ●
キッチンに立ちながら家族の様子が見える、動線と視界の効率性が高いプラン
ーーーーーーーーーーーーーーーーーー

| PICK UP POINT |
| 廊下に割く面積を抑え、入口配置を有効にすることで、移動のための無駄を減らした設計です。 |
| LDK近傍に浴室・洗面・洗濯機置き場がまとめらた配置で家事動線も◎。 |
| 太陽光発電システム5.56kW、蓄電池13.2kWh、HEMS搭載。災害時や停電時も安心で、環境にも家計にも優しい未来志向のスマートハウスです。 |
対象物件
茨城県日立市川尻町6丁目117番、他
茨城県那珂郡東海村白方中央1丁目1700番113他
茨城県那珂市菅谷字杉原651番24
茨城県水戸市見川5丁目138番92他
茨城県稲敷郡阿見町本郷1丁目13番10、他
茨城県牛久市牛久町南裏2479番10、同番18
茨城県つくばみらい市紫峰ヶ丘三丁目11番13
茨城県筑西市中舘2357番2、同番6
茨城県古河市上辺見字鹿養大道北574番9、574番8の一部
茨城県神栖市平泉東三丁目8番2の一部
茨城県鹿嶋市大字宮中字新町附2035番6