POINTS OF THIS PROPERTYポイント
大容量の太陽光発電システム・蓄電池搭載のスマートハウス!
~もしもの災害時にも安心で、でできるだけ電気を買わない先進の暮らし~
- 太陽光発電システム
- 蓄電池
- スマートハイムナビ(HEMS)
- エコキュート
- 食器洗い乾燥機
- 浴室乾燥機
- モニター付き
インターホン - 玄関スマートキー
(電子錠) - 宅配ボックス
SURROUNDING ENVIRONMENT / MAP周辺環境・MAP
上質な環境に、安心の暮らしを。
教育・医療・自然が整う、つくば市並木二丁目。
-
桜南幼稚園
徒歩17分/約1320m
-
並木小学校
徒歩7分/約490m
-
筑波病院
徒歩6分/約440m
-
すぎやま内科皮フ科クリニック
徒歩9分/約690m
-
ブランデつくば並木店
徒歩16分/約1280m
-
TAIRAYA並木店
徒歩14分/約1110m
-
なみき児童公園
徒歩5分/約350m
-
並木公園
徒歩9分/約710m
保育・教育施設
並木保育所
徒歩14分/約1060m桜南幼稚園
徒歩17分/約1320m並木小学校
徒歩7分/約490m並木中学校
徒歩19分/約1520m
病院
筑波病院
徒歩6分/約440mすぎやま内科皮フ科クリニック
徒歩9分/約690m
公園
なみき児童公園
徒歩5分/約350m並木公園
徒歩9分/約710m
ショッピング
ブランデつくば並木店
徒歩16分/約1280mTAIRAYA並木店
徒歩14分/約1110mカワチ薬品つくば並木店
徒歩13分/約1000mセブンイレブンつくば並木北店
徒歩12分/約930m
その他
桜並木郵便局
徒歩12分/約920mつくばエクスプレス「つくば」駅
徒歩48分/約3800m
Google Mapを見る
EQUIPMENT / SPECIFICATIONS設備・仕様
-
太陽光発電システム
もしもの災害時でも日中電気を使える安心。
※メーカーのモデルチェンジにより、形状が変更となる場合があります。※事前に計画したコンセントでのみ電力使用が可能です。同時に使用できる電力には限りがあります。
-
蓄電池
停電時でも生活に最低限 必要な電力を確保。
※停電時には蓄電池の残量が無いと復旧しません。停電時に自動ですべてのコンセント・照明・設備に電気が供給されます。同時に使用できる電力には限りがあります。
-
スマートハイムナビ(HEMS)
電力状況を見える化し、省エネをアドバイス。
※対象の機種には制限があります。事前にアプリのダウンロードが必要です。
-
エコキュート
空気中の熱も利用してお湯を沸かすエコな給湯器
※画像は参考イメージ。メーカー、仕様により形状等が異なります。
-
食器洗い乾燥機
家事を減らし「家族の時間」をもっと楽しく。
※画像は参考イメージ
-
浴室乾燥機
花粉の季節や梅雨時の洗濯の強い味方!
※画像は参考イメージ
-
玄関スマートキー(電子錠)
リモコンをカバンに入れたままドアを施解錠。
※画像は参考イメージ
-
モニター付きインターホン
来客の応対や防犯にも役立つモニター付きのインターホン。
※画像は参考イメージ
-
宅配ボックス
外出中でも荷物が受け取れるので便利。
※メーカー、仕様により形状等が異なります。
-
ジオマイト外壁
石素材をモチーフとした重厚感のある外壁。
-
No.1/省エネ性能ラベル
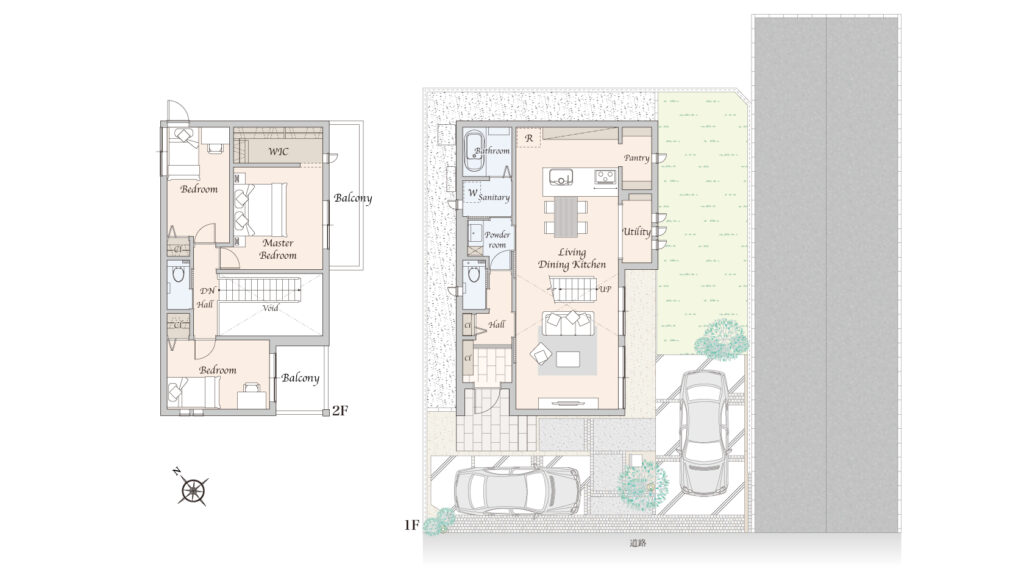
BLOCK DIAGRAM / FLOOR PLAN区画図・間取り
区画図
※電柱計画は変更になる可能性があります。異なる場合は現況を優先とさせていただきます。
※掲載の区画図は設計図面を基に書き起こしたもので、実際と異なる場合があります。異なる場合は現況を優先とさせていただきます。
※方位記号は若干の差異を生じる場合があります。
※確定測量の結果、誤差が生じた場合は精算いたしません。
※坪数は1m²=0.3025坪、小数点第3位以下は切り捨てで計算しています。
間取り
左右にフリックしてご覧ください鉄骨系ユニット工法
- 販売価格
- 6,180万円(税込)
- 土地面積
- 165.53m² ( 50.07坪 )
- 建物面積
- 101.56m² ( 30.72坪 )
- 主な設備
- 太陽光発電システム 6.36kW、蓄電池 13.2kWh
※図面を基に書き起こしたもので、実際とは異なる場合があります。異なる場合は現況を優先とさせていただきます。
※方位記号は若干の差異を生じる場合があります。
※外観は完成イメージです。
※完成予想図・間取りに記載された家具類、自動車等は一部を除き販売価格に含まれません。
※太陽光搭載量と実際の発電量は異なります。
PROPERTY DESCRIPTION物件概要
- 名称
- スマートハイムプレイス並木二丁目
- 所在地
- 茨城県つくば市並木二丁目5番25他
- 交通
- 徒歩4分の「並木二丁目」バス停からバス18分でつくばエクスプレス「つくば」駅
- 地目
- 山林
- 都市計画
- 市街化区域
- 用途地域
- 第二種中高層住居専用地域
- 建ぺい率
- 60%
- 容積率
- 200%
- 道路幅員・舗装
- 南西側6m公道(アスファルト舗装)
- 私道負担
- なし
- 設備
- 東京電力(他の小売電気事業者の選択も可能)、 公営水道、公共下水道(汚水・雑排水・雨水)
- 総区画数
- 4区画
- 販売戸数
- 1戸
- 販売価格
- 6,180万円税込(1戸)
- 土地面積
- 165.53㎡(1区画)
- 建物面積
- 101.56㎡(1戸)
- 建築確認番号
- 第2025CA-1034H号(令和7年10月28日)他
- 構造・工法・階数
- 鉄骨系ユニット工法2階建
- 完成年月
- 2026年5月予定
- 引渡し可能年月
- 2026年6月予定
- その他特記事項
-
※第二種文教地域
※景観法による規制あり
※最寄りのゴミ捨て場を利用する場合は、自治会への加入が必要となります。
※共有地に関する協定書の締結あり、地役権設定あり
※先着順分譲のため、お申込み済の場合がございます。あらかじめご了承ください。 - 取引態様
- 売主:茨城セキスイハイム株式会社
- 更新日
- 2026年5月11日
- 次回更新日
- 2026年5月25日
- 取引条件の有効期限
- 2026年6月5日
DEPARTMENT IN CHARGE担当
つくば分譲グループ
- 電話番号
- 0120-036-816(フリーコール)
- 住所
- 茨城県つくば市研究学園3-19-4
- 営業時間
- 9:00~17:30
- 定休日
- 火曜・水曜 ※祝日等の関係で定休日が変更になる場合があります
この物件を見た人はこんな物件も見てます
-
新築一戸建て【予告広告】スマートハイムシティつくば高山〈一戸建て〉
所在地茨城県つくば市下河原崎字清上248番1、253番3、同番5(底地)、上河原崎・中西特定地区D12街区28画地(保留地)他
詳細を見る -
建築条件付き土地【予告広告】ブリージアつくば陣場Ⅱ〈土地〉
所在地茨城県つくば市研究学園都市計画事業島名・福田坪一体型特定土地区画整理事業E27街区3画地(保留地)
詳細を見る -
新築一戸建て【予告広告】スマートハイムシティ陣場E25街区〈一戸建て〉
所在地茨城県つくば市谷田部字陣場2415-5(従前地)、研究学園都市計画事業島名・福田坪一体型特定土地区画整理事業E25街区25画地(仮換地)他
詳細を見る -
新築一戸建て【予告広告】スマートハイムプレイス荒川本郷XIII〈一戸建て〉
所在地茨城県稲敷郡阿見町大字荒川本郷字鶉野2066番395他
詳細を見る -
新築一戸建て【予告広告】スマートハイムプレイスかみかわⅦ〈一戸建て〉
所在地茨城県つくば市上河原崎元宮本字上ノ前321番1(従前地)、上河原崎・中西特定地区B2街区1画地(仮換地)他
詳細を見る -
新築一戸建てスマートハイムプレイス香取台Ⅷ〈1戸〉
所在地茨城県つくば市島名字土橋本881番1、同番2、887番、888番(底地)、島名・福田坪一体型特定地区A3街区1画地(保留地)
詳細を見る
- HOME
- スマートハイムプレイス並木二丁目〈1戸〉

